For more information regarding the value of a property, please contact us for a free consultation.
114 Red Cloud WALK Waleska, GA 30183
Want to know what your home might be worth? Contact us for a FREE valuation!

Our team is ready to help you sell your home for the highest possible price ASAP
Key Details
Sold Price $396,900
Property Type Single Family Home
Sub Type Single Family Residence
Listing Status Sold
Purchase Type For Sale
Square Footage 1,860 sqft
Price per Sqft $213
Subdivision Lake Arrowhead
MLS Listing ID 7538695
Sold Date 09/12/25
Style Cottage,Craftsman
Bedrooms 3
Full Baths 3
Construction Status New Construction
HOA Fees $393/ann
HOA Y/N Yes
Year Built 2025
Tax Year 2024
Lot Size 5,227 Sqft
Acres 0.12
Property Sub-Type Single Family Residence
Source First Multiple Listing Service
Property Description
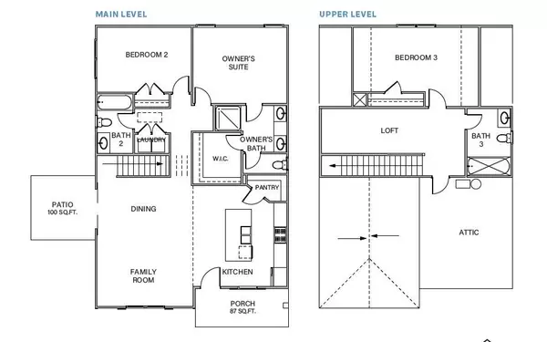
Phase 2 Released! Final Opportunities!! Discover the perfect blend of tranquility and adventure in this beautifully master on main appointed 3-bedroom, 3-bathroom with Loft mountain cottage, nestled in the exclusive gated community of Lake Arrowhead offering breathtaking views of the surrounding mountains and a serene lake. Open Concept kitchen with loads of storage with walk-in pantry and wall pantry, carpet in all bedrooms, LVP throughout main living area and loft. Easy access to the South Gate and the marina, walking distance to Red Cloud Park Sports Complex. Available September 2025.
Location
State GA
County Cherokee
Area Lake Arrowhead
Lake Name Arrowhead
Rooms
Bedroom Description Master on Main
Other Rooms None
Basement None
Main Level Bedrooms 2
Dining Room Open Concept
Kitchen Cabinets White, Kitchen Island, Pantry Walk-In, Stone Counters, View to Family Room
Interior
Interior Features Disappearing Attic Stairs, Double Vanity, High Ceilings 9 ft Main, High Speed Internet, Low Flow Plumbing Fixtures, Recessed Lighting, Walk-In Closet(s)
Heating Central, Electric, Heat Pump, Zoned
Cooling Central Air, Electric, Zoned
Flooring Carpet, Luxury Vinyl
Fireplaces Type None
Equipment None
Window Features Double Pane Windows,Insulated Windows
Appliance Dishwasher, Disposal, Electric Range, Electric Water Heater, Microwave
Laundry Electric Dryer Hookup, In Hall, Laundry Closet, Main Level
Exterior
Exterior Feature Courtyard, Other
Parking Features Parking Pad
Fence None
Pool None
Community Features Country Club, Dog Park, Gated, Golf, Homeowners Assoc, Lake, Marina, Pool, Powered Boats Allowed, Restaurant, Tennis Court(s)
Utilities Available Cable Available, Electricity Available, Phone Available, Sewer Available, Underground Utilities, Water Available
Waterfront Description None
View Y/N Yes
View Mountain(s)
Roof Type Composition
Street Surface Asphalt
Accessibility None
Handicap Access None
Porch Side Porch
Total Parking Spaces 2
Private Pool false
Building
Lot Description Landscaped, Level
Story One and One Half
Foundation Slab
Sewer Other
Water Private
Architectural Style Cottage, Craftsman
Level or Stories One and One Half
Structure Type Fiber Cement
Construction Status New Construction
Schools
Elementary Schools R. M. Moore
Middle Schools Teasley
High Schools Cherokee
Others
HOA Fee Include Security,Swim,Tennis
Senior Community no
Restrictions true
Tax ID 22N17 094
Read Less

Bought with Real Broker, LLC.
GET MORE INFORMATION




